Thanh Profile Nhôm Xingfa Hệ 55
Độ Dày Nhôm Xingfa
Cửa sổ 4 cánh mở quay sử dụng nhôm Xingfa hệ 55, với độ dày của thân cánh cửa và khung bao là 1.4mm (± 5%). Đây là loại nhôm được sản xuất theo công nghệ hiện đại, có độ bền cao và khả năng chịu lực tốt, đảm bảo an toàn tuyệt đối cho người sử dụng.

Cửa sổ 4 cánh nhôm Xingfa
Màu Sắc Đa Dạng
Sản phẩm có nhiều tùy chọn màu sắc như trắng sứ, nâu sần ánh kim, đen tuyền, ghi sẫm và vân gỗ (giả gỗ tự nhiên). Điều này giúp khách hàng dễ dàng lựa chọn màu sắc phù hợp với không gian kiến trúc của mình.
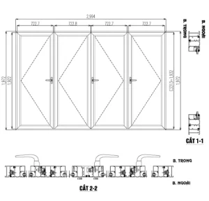
Kích Thước Cửa Sổ 4 Cánh Mở Quay
Kích thước của cửa sổ nhôm Xingfa 4 cánh mở quay được đo đạc và sản xuất theo kích thước thực tế của từng công trình. Điều này giúp sản phẩm linh hoạt và phù hợp với mọi yêu cầu về không gian.

Bản vẽ cửa sổ mở quay 4 cánh
Cửa Nhôm Xingfa Sử Dụng Kính An Toàn
Độ Dày Kính An Toàn
Cửa sổ 4 cánh mở quay sử dụng kính an toàn phôi kính Chu Lai với độ dày từ 6.38mm đến 21mm. Đây là loại kính có độ bền cao, khả năng chịu lực tốt, mang lại sự an toàn tuyệt đối cho người sử dụng.
Phụ Kiện Kinlong Cao Cấp
Phụ Kiện Nhập Khẩu Chính Hãng
Phụ kiện của cửa sổ 4 cánh mở quay nhôm Xingfa được nhập khẩu đồng bộ từ Kinlong, đảm bảo chất lượng và độ bền cao. Phụ kiện này có khả năng chịu lực tốt, giúp cửa hoạt động ổn định trong thời gian dài.
Gioăng Kép EDPM Chất Lượng Cao
Khả Năng Kín Khít Tuyệt Đối
Gioăng kép EDPM được sử dụng trong cửa nhôm Xingfa có độ bền cao, khả năng chịu nhiệt, chịu lạnh và chịu dầu tốt. Điều này giúp cửa đạt được độ kín khít tuyệt đối, chống thấm nước và cách âm hiệu quả.
Keo Apollo Và PU88
Keo Chịu Nước Tuyệt Đối
Keo Apollo được sử dụng để đảm bảo độ bền và khả năng chống thấm nước tuyệt đối cho cửa sổ. Ngoài ra, keo ép góc PU88 nhập khẩu từ Mỹ còn giúp cửa đạt được độ kín khít cao, chống thấm nước và chịu được các tác động của môi trường.
Ốc Vít Inox Chống Han Rỉ
Độ Bền Vượt Trội
Toàn bộ ốc vít được sử dụng trong cửa sổ nhôm Xingfa 4 cánh mở quay đều là ốc vít Inox, giúp sản phẩm chống han rỉ và đảm bảo độ bền theo thời gian, ngay cả trong các điều kiện môi trường khắc nghiệt.
Bảo Hành Chính Hãng
Thời Gian Bảo Hành 5 Năm
Sản phẩm cửa sổ 4 cánh mở quay nhôm Xingfa được bảo hành chính hãng 5 năm. Đây là cam kết về chất lượng, giúp khách hàng yên tâm sử dụng sản phẩm trong thời gian dài.
Đặc Điểm Nổi Bật Của Cửa Sổ Nhôm Xingfa 4 Cánh Mở Quay
Khả Năng Định Vị Góc Mở
Một trong những đặc điểm nổi bật của cửa sổ nhôm Xingfa 4 cánh mở quay là khả năng định vị góc mở, cho phép người dùng mở rộng hoặc thu nhỏ kích thước cửa sổ để tạo không gian thoáng khí và ánh sáng.
Sơn Tĩnh Điện Cao Cấp
Bề mặt cửa sổ được bao phủ bởi lớp sơn tĩnh điện cao cấp, giúp chống phai màu và lão hóa theo thời gian, giữ cho sản phẩm luôn mới và bền đẹp.
Bản Lề Chữ A, Tay Nắm Đa Điểm
Cửa sổ sử dụng bản lề chữ A, tay nắm đa điểm và thanh chốt, giúp cửa hoạt động ổn định và ngăn ngừa nguy cơ bị gió đập.
Hiệu Quả Kinh Tế Và Tiện Ích
Tiết Kiệm Năng Lượng
Sử dụng cửa nhôm Xingfa 4 cánh mở quay là giải pháp hiệu quả trong việc tiết kiệm năng lượng cho các công trình, đặc biệt là các tòa nhà cao tầng có nhiều mặt tiếp xúc với ánh nắng mặt trời.
An Toàn Và Thuận Tiện
Với thiết kế chắc chắn và hệ thống phụ kiện cao cấp, cửa sổ nhôm Xingfa không chỉ đảm bảo an toàn mà còn mang lại sự tiện lợi trong quá trình sử dụng và bảo dưỡng.
Cửa sổ 4 cánh mở quay nhôm Xingfa là sự lựa chọn hoàn hảo cho những ai đang tìm kiếm sản phẩm cửa sổ có chất lượng cao, bền bỉ và thẩm mỹ. Với các tính năng vượt trội và thông số kỹ thuật chi tiết, sản phẩm này đáp ứng tốt mọi nhu cầu của khách hàng trong các công trình xây dựng hiện đại.
Câu Hỏi Thường Gặp
1. Cửa sổ 4 cánh mở quay nhôm Xingfa có thể sử dụng cho những loại công trình nào?
Cửa sổ 4 cánh mở quay nhôm Xingfa phù hợp với nhiều loại công trình từ nhà ở đến văn phòng, đặc biệt là các tòa nhà cao tầng.
2. Màu sắc cửa sổ nhôm Xingfa có bền màu theo thời gian không?
Có, cửa sổ nhôm Xingfa được sơn tĩnh điện cao cấp, giúp chống phai màu và lão hóa theo thời gian.
3. Phụ kiện Kinlong có đảm bảo chất lượng không?
Phụ kiện Kinlong được nhập khẩu chính hãng, có độ bền cao và khả năng chịu lực tốt, đảm bảo chất lượng trong suốt thời gian sử dụng.
4. Cửa sổ nhôm Xingfa 4 cánh mở quay có dễ dàng bảo dưỡng không?
Có, cửa sổ nhôm Xingfa dễ dàng bảo dưỡng với các hướng dẫn đơn giản, đảm bảo cửa luôn hoạt động trơn tru.
5. Thời gian bảo hành cửa sổ nhôm Xingfa là bao lâu?
Sản phẩm được bảo hành chính hãng trong 5 năm, đảm bảo an tâm cho người sử dụng.
THÔNG TIN LIÊN HỆ:
NHÀ THẦU THI CÔNG NHÔM KÍNH TIỆP KHẮC
Address: 78 Nguyễn Hữu Thọ – Hải Châu – Đà Nẵng
Phone: 0935.278.252
Email: tiepkhacwindow@gmail.com







Đánh giá
Chưa có đánh giá nào.